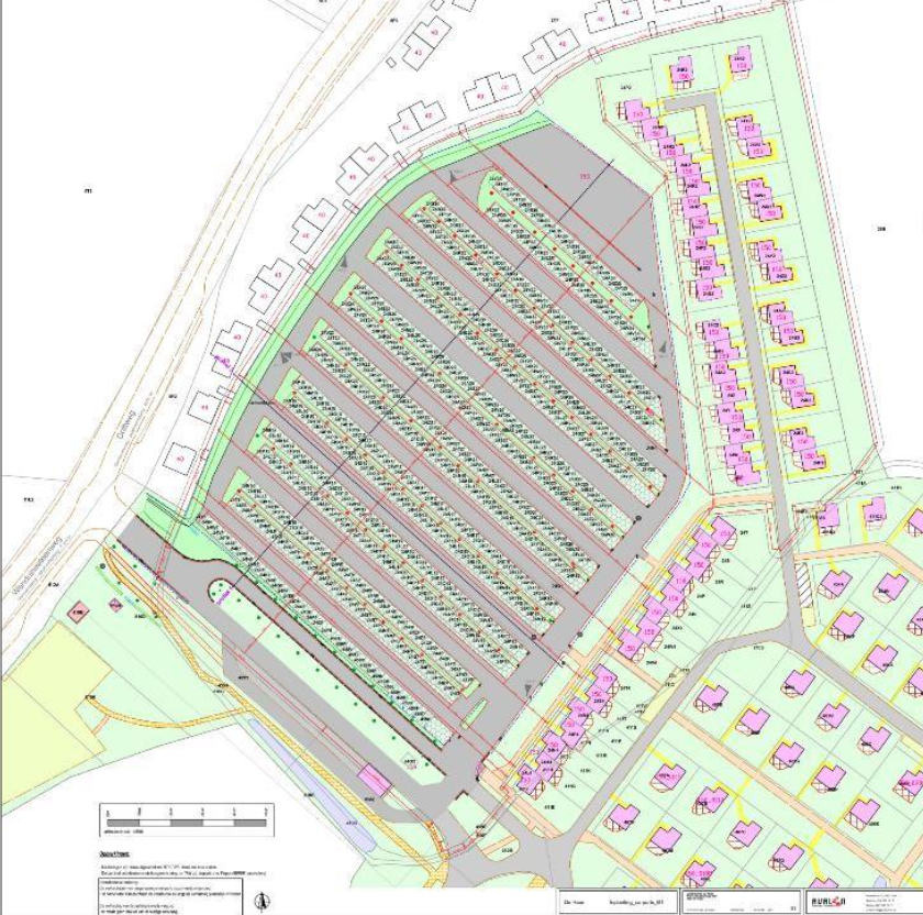
Duurzame energie en groenbeheer: PV-carportproject Center Parcs De Haan
omgevingsvergunning verleent
Centr Parcs
Zuienkerke - De Haan
Avalon L+E - Wannes Thyssen - Reflekt architecten
3019 kWp

omgevingsvergunning verleent
Centr Parcs
Zuienkerke - De Haan
Avalon L+E - Wannes Thyssen - Reflekt architecten
3019 kWp